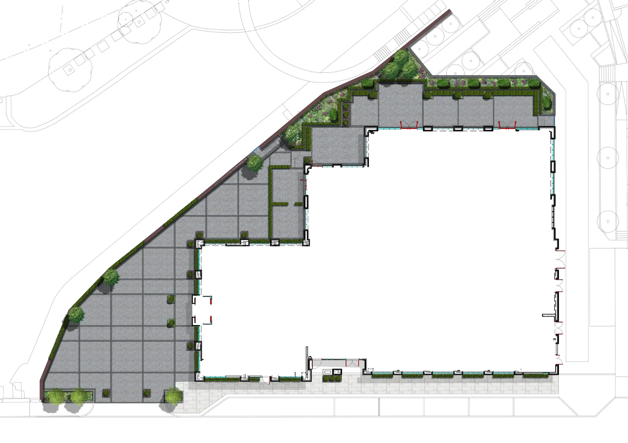
We are landscape architects for a series of Dakota Hotel projects across the country, bringing our planting and public realm expertise from planning stage to detailed design. Blending luxury style with sustainability, our planting schemes enhance the guest experience while complementing Dakota’s signature design aesthetic.







In 2025 we celebrated the opening of Olive Lane, which was delivered by Harworth Group at their flagship Waverley development in Yorkshire. Olive Lane is the ‘heart of the community’ with a vision to join together the Advanced Manufacturing Park and residential development at Waverley, through high quality commercial, community and residential uses. Our public realm and landscape design helps create a vibrant, welcoming, community focused place, featuring the high street, a central plaza and pocket parks. The launch event was attended by over 1,000 Waverley residents, which brought the street to life.
"PWP Design delivered an extensive and inspiring design guide and sketch design, transcending our own expectations of what was possible with our limited budget. Simon Hall's knowledge, enthusiasm and ever-present support has been a breath of fresh air and we are extremely thankful for his contribution to the project."
Sam Leach (Spark:York CIC)
© Copyright 2026 PWP Design Privacy Policy Cookies Policy Website Design by Pivotal Marketing